Objectif: Réaliser une réservation de sol avec impact (Visibilité Oui / Non) pour le niveau inférieur
Cet ajout à la réservation évite les erreurs / oublis lors des charrettes, l'impact fait partie intégrante de la famille,
C'est du vécu...
_Gabarit de famille > Modèle générique sol
_Nouveau > Famille > Modèle générique sol
02_Construction de la famille réservation de sol
Sur le plan de référence:
_Tracer des plans de référence
_Coter et libeller les plans de référence
03_Construction de la famille réservation de sol
_Créer > Formes vides > Vide par extrusion...
04_Construction de la famille réservation de sol
_Créer > Formes vides > Vide par extrusion
_Tracer une esquisse verrouillée sur les plans de référérence
_Valider > l'extrusion prend forme...
05_Construction de la famille réservation de sol
Vue avant
_Tracer 2 plans de référence pour la face supérieure et la face inférieure du sol
_Verrouiller les plans de référence au sol
_Verrouiller l'extrusion aux plans de référence
Le vide est terminé, il suivra l'épaisseur du sol
06_Construction de la famille réservation de sol
Construction de la famille Plan 2D de la réservation
_Famille > Eléments de détail
07_Construction de la famille réservation de sol
Construction de la famille Plan 2D de la réservation
Comme pour la famille vide d'extrusion:
_Tracer des plans de référence
_Coter et libeller les plans de référence
08_Construction de la famille réservation de sol
Construction de la famille Plan 2D de la réservation
_Tracer l'esquisse, verrouiller sur les plans de référence
09_Construction de la famille réservation de sol
Construction de la famille Plan 2D de la réservation
_Ajouter des plans de référence pour le symbole de la réservation
_Coter et libeller les plans de référence
10_Construction de la famille réservation de sol
Construction de la famille Plan 2D de la réservation
_Tracer une zone remplie et verrouiller son contour sur les plans de référence
(Verrouiller également les points d'extrémité de la zone remplie)
11_Construction de la famille réservation de sol
Construction de la famille Plan 2D de la réservation
_Ajout d'un paramètre de visibilité pour la famille Plan 2D
_Sélectionner toutes les entités de la famille Plan 2D >
_Clic sur le Carré en regard du champs Visible de Graphismes >
_Association aux paramètres de la famille > Nouveau >
_Paramètres de la famille > Nom > Occurrence > Type de paramètre > Oui / Non > Regrouper les paramètres sous > Graphismes...
12_Construction de la famille réservation de sol
Construction de la famille Plan 2D de la réservation
_Ajout d'un paramètre de visibilité pour la famille Plan 2D
_Le carré en regard du champ Visible de Graphismes est = au champs 11 paramétré ci-dessus
13_Construction de la famille réservation de sol
Construction de la famille Plan 2D de la réservation
La famille plan 2D est terminée
_Charger dans le projet
14_Construction de la famille réservation de sol
Famille vide d'extrusion (3D) et famille Plan 2D...
15_Construction de la famille réservation de sol
_Association aux paramètres de la famille > Faire correspondre les valeurs de la famille Plan 2D aux valeurs de la famille vide d'extrusion
16_Construction de la famille réservation de sol
_Ajout d'un paramètre de visibilité >
_Graphismes > Visible > Clic sur Carré >
_Association aux paramètres de la famille > Visibilité Plan 2D (écrire le nom à l'invite)
_Valider
17_Construction de la famille réservation de sol
Les propriétés de la famille Plan 2D sont toutes associées aux paramètres de la famille Vide d'extrusion
_Charger dans le projet
18_Test des paramètres de visibilité pour une même famille sur le même niveau
_à gauche la visibilité de la famille Plan 2D est activée
_à droite la visibilité de la famille Plan 2D est désactivée
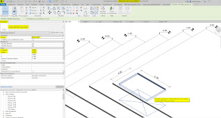
19_Construction de la famille réservation de sol
Impact
Vue avant
_Tracer un plan de référence > Coter et libeller
20_Construction de la famille réservation de sol
Impact
_Définir comme plan de construction le plan de référence tracé en 19 (Hauteur Projection Impact)
21_Construction de la famille réservation de sol
Impact
_Définir comme plan de construction le plan de référence tracé en 19 (Hauteur Projection Impact)
_Tracer des lignes de modèles en cliquant sur le périmètre de la famille vide d'extrusion
22_Construction de la famille réservation de sol
Impact
_Tracer des lignes de modèles en cliquant sur le périmètre de la famille vide d'extrusion
_Verrouiller
23_Construction de la famille de réservation de sol
Impact
_Compléter le symbole Impact
Ajout d'un paramètre de visibilité pour le symbole Impact:
_Sélectionner toutes les entités de l'impact
_Graphismes > Visible > Clic sur carré >
_Association aux paramètres de la famille > Nouveau >
_Propriétés des paramètres > Paramètres de la famille > Nom > Occurrence > Type de paramètre > Oui / Non > Regrouper les paramètres sous > Graphismes
24_Construction de la famille réservation de sol
Impact
V3D de la famille
(Le symbole impact est visible car il est tracé avec des lignes de modèles et le paramètre de visibilité est Oui)
25_Construction de la famille réservation de sol
Impact
_Charger dans le projet
26_Projet_V3D
La famille réservation de sol et l'impact projeté sur le sol inférieur
27_Projet V3D
Propriétés de la famille réservation de sol avec impact
28_Projet_Niveau supérieur
_Visibilité activée pour la famille Plan 2D
_Visibilité désactivée pour le symbole Impact
29_Projet_Niveau inférieur
_Visibilité désactivée pour la famille Plan 2D
_Visibilité activée pour le symbole Impact
30_Projet_Coupe
Paramétrage de la hauteur de projection de l'impact
_Faire glisser la double flèche (jaune), ou entrer la hauteur dans les propriétés
31_Projet_V3D
Propriétés































